- Woonoppervlakte
- Circa 161 mยฒ
- Perceeloppervlakte
- Circa 405 mยฒ
- Bouwjaar
- Gebouwd in 1988
- Aantal kamers
- 7 kamers (3 slaapkamers)
Netjes onderhouden ruime vrijstaande gezinswoning.
De Stroom is een rustige woonstraat in het alles biedende Beilen. Deze comfortabele woning op no. 5 ligt aan de achterzijde tegen het groen met een waterpartij. Uitzicht gegarandeerd. De woning is vergroot met een kap boven de garage, waardoor veel extra ruimte beschikbaar is.
Met een bad en slaapkamer op de begane grond mogen we de woning levensloopbestendig noemen, maar een jong gezin past hier ook uitstekend. De badkamer op de verdieping is in staat van renovatie, af te ronden door de koper. Kunnen meteen de goede tegeltjes gebruikt worden.
Hoewel al beschikkend over een energielabel C, is er nog ruimte voor verdere verduurzaming.
Prima bewoonbaar, bijna klaar voor een volgende levenscyclus.
Aan de voor en achterzijde zijn sinds mensenheugenis stukjes groen van de gemeente in gebruik. Wellicht is dat in eigendom te verkrijgen via het snippergroen beleid dat de gemeente voert.
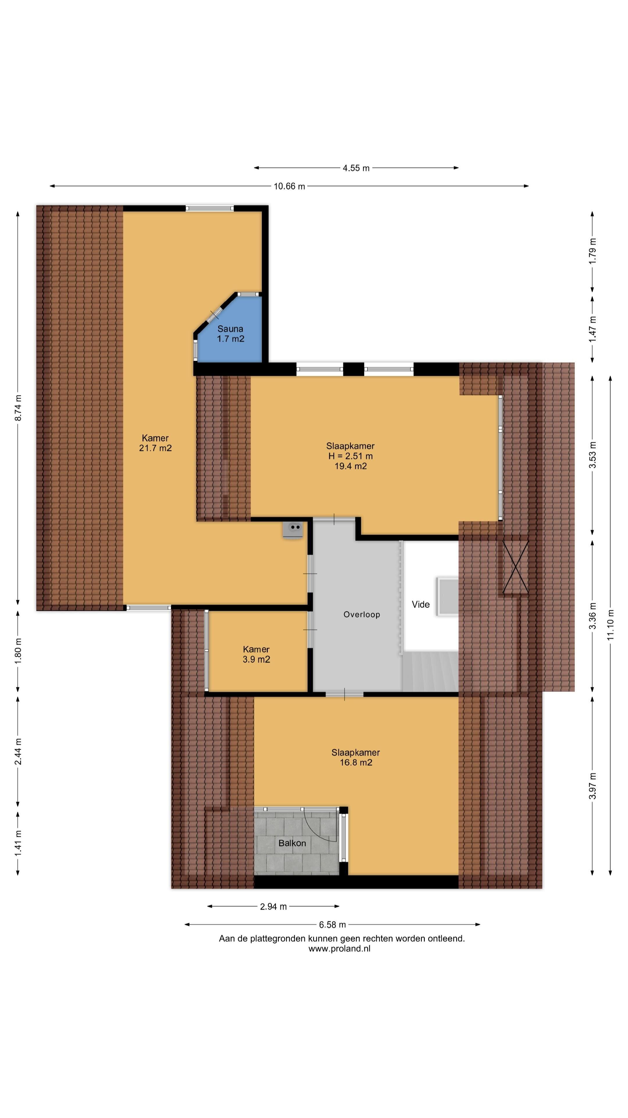
Indeling:
Begane grond: entree in ruime hal met trapopgang, toilet, slaap/ studeerkamer, badkamer en toegang tot de ruime living met open keuken in eiland opstelling. Bijkeuken met witgoedaansluitingen en doorgang naar de garage met werkruimte en achterdeur.
Verdieping: riante overloop met vide, slaapkamer aan de voorzijde met inpandig balkon, badkamer in renovatie, toegang tot de grote kamer boven de garage (dient nog een definitieve bestemming toegewezen te krijgen), en toegang tot de achterslaapkamer met dakkapel en uitzicht over het park.
Een luik in het plafond van de slaapkamer geeft toegang tot de vliering, welke tot op de dag van vandaag nog niet in gebruik is genomen.
Kortom, comfortabele en ruime vrijstaande gezinswoning met veel potentie in een fijne wijk in een goed voorzien groot dorp met prima ontsluiting zowel met eigen vervoer als openbaar vervoer. Lees de volledige omschrijving
Overdracht
- Vraagprijs
- โฌ 565.000 k.k.
- Status
- Beschikbaar
- Aanvaarding
- Per direct beschikbaar
Bouw
- Object type
- Eengezinswoning, vrijstaande woning
- Soort bouw
- Bestaande bouw
- Bouwjaar
- 1988
- Soort dak
- Samengesteld dak bedekt met pannen
Oppervlakte en inhoud
- Woonoppervlakte
- 161 mยฒ
- Perceeloppervlakte
- 405 mยฒ
- Inhoud
- 686 mยณ
- Gebouwgeb. buitenruimte
- 9 mยฒ
Indeling
- Aantal kamers
- 7 kamers (3 slaapkamers)
- Aantal badkamers
- 1 badkamer en 1 apart toilet
- Badkamervoorzieningen
- Sauna, douche, ligbad, en wastafel
- Aantal woonlagen
- 2 woonlagen
- Voorzieningen
- Buitenzonwering, dakraam, glasvezelkabel, natuurlijke ventilatie, sauna, en TV kabel
Energie
- Energielabel
- C
- Energielabel registratie
- 21-11-2025
- Isolatie
- Volledig geรฏsoleerd
- Verwarming
- Cv-ketel en open haard
- Warm water
- Cv-ketel
- Cv ketel
- Intergas kombi kompakt hreco 36 (gas gestookt combiketel uit 2018, eigendom)
Buitenruimte
- Ligging
- Aan park, aan rustige weg, in bosrijke omgeving en in woonwijk
- Balkon / dakterras
- Balkon aanwezig
- Tuin
- Tuin rondom en zonneterras
Garage
- Soort garage
- Inpandig
- Capaciteit
- 1 auto
- Voorzieningen
- Elektra
- Isolatie
- Muurisolatie
Parkeergelegenheid
- Soort parkeergelegenheid
- Op eigen terrein en openbaar parkeren
Energieverbruik in Beilen
Energielabel deze woning
Energielabel C
Publicatie energielabel: 21-11-2025
Stroomverbruik per jaar
(Gemiddelde vrijstaande woning in Beilen)
Gasverbruik per jaar
(Gemiddelde vrijstaande woning in Beilen)
* Cijfers zijn afkomstig van het CBS en bedoeld als indicatie en kunnen verschillen voor deze woning
Indicatie hypotheeklasten
Eigen inleg:
Spaargeld / overwaarde
Rente:
Laagste 10-jaars rente
Laagste 10-jaars rente
2,78% - Centraal Beheer Groen... - NHG
3,04% - Centraal Beheer Groen... - 80%
Laagste 20-jaars rente
3,29% - Centraal Beheer Groen... - NHG
3,52% - Centraal Beheer Groen... - 80%
Laagste 30-jaars rente
3,41% - Centraal Beheer Groen... - NHG
3,7% - Argenta Groen Hypotheek... - 80%
Hypotheek:
Bruto maandlasten: โฌ 0 p/m
Netto maandlasten: โฌ 0 p/m
Hoe berekenen we dit?
Het rentepercentage is gebaseerd op de laagste 10 jaars vaste rente voor รฉรฉn hypotheekdeel. De vermelde rente (3.04% zonder NHG) is gecontroleerd op 16-02-2026. Deze berekening is gebaseerd op een annuรฏteitenhypotheek die volledig wordt afgelost, waarbij de maandlasten gedurende de gehele looptijd gelijk blijven. De werkelijke rente en netto maandlasten kunnen variรซren, afhankelijk van uw persoonlijke situatie en de hypotheekverstrekker. Raadpleeg een financieel adviseur voor een nauwkeurige berekening en advies. Aan deze berekening kunnen geen rechten worden ontleend; het dient enkel als indicatie.
Documentatie
Kadastrale kaart
Leefomgeving
Brochure
BAG uittreksel
WOZ waarderapport
Plattegronden PDF
Bezoek onze website
Qualis Makelaars
Nationale Monumentenorganisatie
Bezichtiging
Bod uitbrengen
Waardebepaling
Zoekopdracht
Alles downloaden
Zonnegrenzen bekijken
Inwoners in Beilen
Cijfers voor postcodegebied 9411
- Totaal aantal inwoners
- 8420 inwoners
- Mannen
- 49%
- Vrouwen
- 51%
Inwoners in Beilen
Cijfers voor postcodegebied 9411
- tot 15 jaar
- 13%
- 15 tot 25 jaar
- 11%
- 25 tot 35 jaar
- 19%
- 45 tot 65 jaar
- 29%
- 65 en ouder
- 28%
Huishoudens in Beilen
Cijfers voor postcodegebied 9411
- Eenpersoons zonder kinderen
- 37%
- Meerpersoons zonder kinderen
- 33%
- Huishoudens zonder kinderen
- 70%
Huishoudens in Beilen
Cijfers voor postcodegebied 9411
- Huishoudens met รฉรฉn kind
- 7%
- Huishoudens met meerdere kinderen
- 23%
- Huishoudens met kinderen
- 30%
Woningen in Beilen
Cijfers voor postcodegebied 9411
- Woningen voor 1945
- 15%
- Woningen tussen 1945 en 1965
- 15%
- Woningen tussen 1965 en 1975
- 23%
- Woningen tussen 1975 en 1985
- 14%
- Woningen tussen 1985 en 1995
- 18%
Woningen in Beilen
Cijfers voor postcodegebied 9411
- Woningen tussen 1995 en 2005
- 6%
- Woningen tussen 2005 en 2015
- 6%
- Woningen na 2015
- 3%
- Huurwoningen
- 40%
- Koopwoningen
- 60%
Overige in Beilen
Cijfers voor postcodegebied 9411
- Gemiddelde WOZ waarde
- โฌ 205.000,-
- Personen onder de 65 met uitkering
- 9%
Overige in Beilen
Cijfers voor postcodegebied 9411
- Adressen per kmยฒ
- 777
- Stedelijkheid (schaal 1 op 5)
- 40%
Korte feiten over Beilen
Beilen is een esdorp in de Nederlandse provincie Drenthe; het is de hoofdplaats van de gemeente Midden-Drenthe.
MJM Makelaardij
Indien u vragen heeft of u wilt een bezichtiging inplannen, dan kunt u gebruik maken van het formulier hiernaast. Er zal daarna op korte termijn contact met u worden opgenomen.
Contact opnemen
MJM - Makelaarskantoor NVM Qualis
MJM - Makelaarskantoor Jacob Muller, een erkende NVM Qualis NMO makelaar, bevindt zich in een historisch gebouw in het hart van Westerbork.
Als onderdeel van de NVM (Nederlandse Vereniging van Makelaars), biedt MJM toegang tot het meest uitgebreide, actuele assortiment van residentiรซle en commerciรซle vastgoedobjecten in Nederland.
Onze registratie bij het RMT (Register Makelaar Taxateur), zoals te zien op www.vastgoedcert.nl, staat garant voor onze expertise.
We zijn toegewijd om u te assisteren bij de koop en verkoop van vastgoed en staan ook klaar om alle soorten taxaties uit te voeren. Voor hypotheken, verzekeringen en bouwgerelateerde diensten, introduceren we u graag aan gerenommeerde aanbieders in onze sector.
Ons streven is om uw opdrachten zorgvuldig, op tijd, volledig en betrouwbaar uit te voeren. Dit omvat een persoonlijke aanpak, gedegen rapportage en volledige verantwoording.
Wij geloven sterk in transparantie, klantgerichtheid en integriteit.
Wij nodigen u uit voor een vrijblijvend gesprek om onze methodes te bespreken en al uw vragen te beantwoorden.
Kantooruren:
Maandag tot vrijdag van 09:00 tot 18:00 uur en op zaterdag alleen op afspraak. Neem voor meer informatie of om een afspraak te maken contact op via 0593-562045 of stuur een e-mail naar info@mjm.nl
"MJM, uw partner in vastgoedwaarde"
Nieuwste reviews
-
Westdorperstraat 19
Servicegerichtheid was groot. Niet te beroerd om zelf blad te blazen om goede fotoโs te kunnen maken.Voor de samenwerking was er wederzijds...
-
Brinkstraat 17
Het is allemaal voorspoedig en vlot verlopen. De communicatie was helder en plezierig, en de makelaar was altijd beschikbaar bij vragen.
-
Veenakkers 50
Jacob blijft altijd rustig onder verschillende omstandigheden. Hij is deskundig en geeft een professioneel en logisch antwoord op vragen. Ee...